客户服务热线:13280082001
欢迎访问williamhill英国官网-刮板机生产制造厂家官方网站
联系我们contact us
  • williamhill英国官网
  • 手机:13280082001
  • 联系人:曹经理
  • 电话:0537-2558089
  • 邮箱:https://www.wankunxincai.com
  • 地址:济宁市国家高新技术产业园区
当前位置:首页 >> 产品中心 >> 其他输送机
其他输送机

LS型螺旋输送机

来源:本站 发布时间:2013-12-23 访问量:2263
LS型螺旋输送机,螺旋输送机

LS型螺旋输送机产品概述:
 
LS型螺旋输送机是按照JB/T679-95《螺旋输送机》标准设计制造,是GX型螺旋输送机的换代产品。头部及尾部轴承移至壳体外,吊轴承采用滑动轴承,没有防尘密封装置,轴瓦一般采用粉末冶金,输送水泥采用毛毡轴瓦,吊轴和螺旋轴采用滑块连接,拆卸螺旋时,不用移动驱动装置,拆卸吊轴承时不用移动螺旋,不拆卸盖板可以润滑吊轴承,整机可靠性高,寿命长,适应性强,安装维修方便。

 

LS型螺旋输送机主要特点:
1.承载能力大、安全可靠。
2.适应性强、安装维修方便、寿命长。
3.整机体积小、转速高、确保快速均匀输送。
4.出料端设有清扫装置,整机噪声低、适应性强,进出料口位置布置灵活。
5.密封性好、外壳采用无缝钢管制作,端部采用法兰互相连接成一体,刚性好。


LS型螺旋输送机工作原理:
    LS型螺旋输送机是利用旋转的螺旋将被输送的物料沿固定的机壳内推移而进行输送工作,头部及尾部轴承移至壳体外,吊轴承采用滑动轴承设有防尘密封装置,轴瓦一般采用粉末冶金,输送水泥采用毛毡轴瓦,吊轴和螺旋轴采用滑块连接。

LS型螺旋输送机型号说明:(范例)
 L  S 400*25*50M1
 ┬ ┬ ┬ ┬ ┬ ┬
 │ │ │ │ │ │
 │ │ │ │ │ │
 │ │ │ │ │ └────────   轴承类别
 │ │ │ │ └────────── 选用转速rpm
 │ │ │ │
 │ │ │ └───────────- 螺旋机长度M
 │ │ │
 │ │ └───────────── 螺旋直径mm
 │ │ 
 │ └──────────────- S为水平式
 │ 
 └──────────────── L为螺旋

LS型螺旋输送机整机布置形式:
    一台螺旋输送机通常由螺旋机本体、进出装置、驱动装置三大部分组成。
    螺旋机本体由头节、中间节、尾节三种组成。一般情况下,出厂总装时将中间节按长度长短依次排列,最长的中间节靠近头节,相同 长度的中间节则挨在一起,如果有特殊要求,则在订货时给出排列顺序。
    在头节内装有支推轴承承受轴向力,在中间节和尾节内装有用轴承支承螺旋轴,此外,在尾节内还装有可轴向移动的径向轴承以补 偿螺旋轴长度的误差和适应温度的变化。螺旋面的形式有实体螺旋(S制法)和带式螺旋(D制法)两种。各螺旋轴之间采用法兰式联接, 保证了联接轴的互换性,便于维修。
    机盖为瓦片式并用盖扣夹紧在机壳上,若需改进密封性能,用户可自行在机盖与机壳间加防水粗帆布。
    进、出料装置有进料口,方型出料口,手推式出料口,齿条式出料口四种。由用户在使用现场在机体上开口焊接。布置进、出料口 位置时应注意保证料口至端部的距离,同时避免料口与吊轴承加油杯、机壳联接法兰、底座等相碰。
    驱动装置有ZQ系列减速器+Y系列电动机,YTC齿轮减速电机两种。
按螺旋输送机驱动方式分为两种:
    C1制法—螺旋机长度小于35m时,单端驱动。
    C2制法—螺旋机大于35m时,双端驱动。
按螺旋机中间吊轴承种类分为:
  M1—为滚动吊轴承,采用80000型密封轴承,轴盖上另有防尘密封结构,常用在不易加油,不加油或油对物料有污染的地方,密封效果好,吊轴承寿命长,输送物料温度≤80℃(订货时可不注明)。
  M2—为滑动吊轴承,设防尘密封装置,常用在输送物料温度比较高(>80℃),或输送液状物料。

LS型螺旋输送机的各种制法:
LS型螺旋输送机结构图:

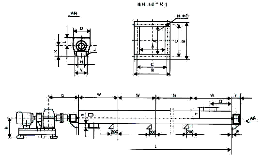
LS型螺旋输送机安装示意图


 

型号 W A B C D N Q Y L K R S P O H V J T G L
LS100 2500 100 180 146 10 4 180 190 90 112 180 112 60 178 120 160 14 163 1500
2000
2500
3500-
40000
LS160 2500 160 240 206 10 4 200 190 112 150 200 150 60 270 120 160 14 190
LS200 3000 200 300 256 14 8 225 190 112 180 225 180 60 308 160 200 14 212
LS250 3000 250 350 306 14 8 250 190 140 224 250 224 60 336 200 250 18 240 40000-
80000
LS315 3000 315 425 370 14 8 330 190 214 280 390 250 60 443 300 350 20 340
LS400 3000 400 500 456 14 8 3580 190 224 355 390 280 60 533 320 400 24 384
LS500 3000 500 600 556 14 8 400 190 280 400 400 340 80 662 400 500 24 440 2000
2500
3500
5500-
80000
LS630 3000 630 730 686 14 8 450 190 355 500 450 420 80 763 500 630 24 555
LS800 3000 800 920 868 18 16 550 340 450 630 550 520 80 970 632 800 30 650
LS1000 3000 1000 1120 1068 18 16 650 360 560 710 650 630 80 1190 710 1000 30 760 6000-60000
LSGX型螺旋输送机技术参数表:
LS型 100 160 200 250 315 400 500 630 800 1000 1250
GX型     200 250 300 400 500        
螺旋直径(mm) 100 160 200 250 315 400 500 630 800 1000 1250
螺距(mm) 100 160 200 250 315 355 400 450 500 560 630
转速(r/min) 140 120 90 90 75 75 60 60 45 35 30
输送量QΦ=0.33(m3/h) 2.2 7.6 11 22 36.4 66.1 93.1 160 223 304 458
功率Pd 1=10m(KW) 1.1 1.5 2.2 2.4 3.2 5.1 4.1 8.6 12 16 24.4
功率Pd 1=30m(KW) 1.6 2.8 3.2 5.3 8.4 11 15.3 25.9 36 48 73.3
转速(r/min) 120 90 75 75 60 60 45 45 35 30 20
输送量QΦ=0.33(m3/h) 1.9 5.7 18 18 29.1 52.9 69.8 125 174 261 305
功率Pd 1=10m(KW) 1.0 1.3 2.1 2.1 2.9 4.1 4.7 6.8 9.4 14.1 16.5
功率Pd 1=30m(KW) 1.5 2.3 4.5 4.5 7 8.9 11.6 20.4 28.3 42.2 49.5
转速(r/min) 90 75 60 60 45 45 35 35 30 20 16
输送量QΦ=0.33(m3/h) 1.4 4.8 15 15 21.8 39.6 54.3 97 149 174 244
功率Pd 1=10m(KW) 0.9 1.2 1.9 1.9 2.5 3.4 4.3 5.4 8.1 9.5 13.3
功率Pd 1=30m(KW) 1.2 2.2 3.8 3.8 5.4 6.8 9.2 16 24.4 28.6 39.9
转速(r/min) 75 60 45 45 35 35 30 30 20 16 13
输送量QΦ=0.33(m3/h) 1.2 3.8 11 11 17 31.7 46.5 73.0 99.3 139 199
功率Pd 1=10m(KW) 0.75 1.1 1.6 1.6 2.1 3.1 3.7 4.6 5.7 7.7 11
功率Pd 1=30m(KW) 1.1 1.8 3.4 3.4 4.4 5.6 8 14 16.7 23.2 33

注:
1.C1 制法螺旋机长度小于 35m 时单端驱动,C2 制法螺旋机长度大于 35m 时双端驱动。
2.M1- 为滚动吊轴承,订货时可不注明,M2-为滑动轴承,订货时要注明瓦材质(轴瓦材料有铜瓦、合金耐磨、铸铁、铜基石墨少油润滑瓦) 。
GX系列螺旋输送机外型尺寸:

型号 W A B C D N R Y L K M S P O H V J T G
GX150 2000 170 236 216 10 8 190 190 112 140 100 135 17 270 110 160 16 195 1000、1500、2000
GX200 2500 220 306 272 10 8 220 190 112 180 200 165 25 308 140 200 16 250 1500
2000
2500
GX250 2500 270 356 330 10 8 270 190 140 220 195 28 356 200 260 20 300
GX300 2500 320 428 385 14 8 300 190 214 270 225 28 443 240 320 20 350
GX400 3000 420 528 492 14 8 350 190 224 340 300 280 30 533 320 400 25 430 1500
2000
3000
GX500 3000 528 662 612 17 8 450 190 280 400 340 35 662 400 500 25 490
GX600 3000 628 762 720 17 8 550 190 255 500 430 40 760 500 600 30 560

友情提示:螺旋机不宜输送易变质的、粘性大的、易结块的物料,因为这些物料在输送时会粘结在螺旋上,并随之旋转而不向前移动或者在吊轴承处形成物料的积塞,而使螺旋机不能正常工作。

williamhill英国官网